ELISA remains one of the most widely used applications in life science laboratories. This FlexPod configuration represents our cost-effective solution for automated ELISA, offering a carefully curated device configuration that balances affordability with quality and reliability (Fig. 1). FlexPod redefines laboratory automation with its mobile, space-saving design that allows you to configure it for your current needs, then reconfigure as those needs evolve.
(A)
(B)
Figure 1. Renderings of a representative mid-throughput ELISA FlexPod configuration which features an Agilent Bravo, HighRes PreciseDrop II, HighRes AmbiStore D, BMG SPECTROstar, Agilent EL406, and four QInstruments BioShakes.
Complete Instrument List
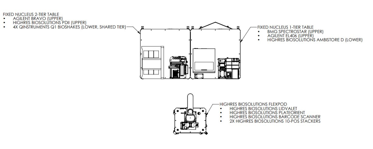
This FlexPod configuration system design (Fig. 2) includes:
- HighRes PreciseDrop II non-contact dispenser
- HighRes AmbiStore D ambient storage carousel
- BMG SPECTROstar absorbance plate reader
- Agilent Bravo liquid handler
- Agilent EL406 combination plate washer dispenser
- 4x QInstruments BioShakes

Figure 2. System Design Drawing for Mid-Throughput ELISA FlexPod Configuration
Strategic Instrument Selection
The FlexPod configuration was designed with a clear objective: maximize accessibility for entry-level ELISA automation. It features the AmbiStore and PreciseDrop II (PDII), we deliver an affordable automation solution without compromising performance (Fig. 2). This approach reduces reliance on expensive third-party components, giving us better pricing control while showcasing the breadth of our product portfolio, including innovative solutions like PlateWeigh. The result is a complete ELISA automation system that makes economic sense for laboratories that don't require ultra-high throughput but still need reliable, walkaway automation.
At the heart of this FlexPod setup is the Agilent Bravo liquid handler, chosen specifically for its small footprint and cost-effectiveness. The Bravo hits the sweet spot for laboratories seeking a capable tip-based liquid handler within a specific price bracket.
The Bravo handles both 96- and 384-well plates with ease, providing the flexibility customers need to adapt their workflows as requirements evolve. The Bravo delivers exactly the right level of capability without unnecessary cost.
Configurable Storage and Incubation
Storage needs vary significantly across different laboratory environments and FlexPod offers flexibility in this regard. The AmbiStore D serves a dual purpose as both ambient storage for consumables and as an incubator, a particularly elegant solution given that most ELISA assays are performed at room temperature. It can accommodate Agilent tip boxes and effectively replaces the need for a separate incubation device.
For customers with different requirements around walkaway time or environmental control, alternative configurations are available. Laboratories can opt for smaller or larger storage devices, replace the AmbiStore with an incubator like the LiCONiC STX44, or utilize smaller HighRes storage devices such as PlateHotels or PicoServe, depending on their specific workflow needs.
Throughput and Timing
The FlexPod configuration is designed to process tens of plates per day, intentionally positioning it squarely in the mid-throughput category (Fig. 2). Workflow analysis in CellarioScheduler shows that ten plates can be completed in approximately six hours and forty minutes, with incubation breaks being the primary determinant of overall throughput (Fig. 3; Fig. 4). This makes FlexPod ideal for laboratories that need reliable, consistent processing without the complexity and cost of high-throughput systems designed for hundreds of plates daily.
FlexPod's modular architecture adapts as your needs change. Instruments can be quickly added or removed to accommodate evolving ELISA protocols and workflows. For laboratories scaling to higher throughputs of hundreds of plates daily, upgrading to an integrated HighRes Prime Liquid Handler or our ELISA Application-Ready Work Cell provides a clear growth path.

Figure 3. Simulated CellarioScheduler Protocol Design for ELISA FlexPod Configuration.
Figure 4. Simulated CellarioScheduler Gantt Chart for ELISA FlexPod Configuration; the dark blue bars are incubation periods and can determine how long or short the entire workflow will take and the throughput.
Beyond ELISA
While this FlexPod configuration was designed with ELISA applications in mind, its versatility extends to other biochemical assays. Luminescence-based assays and similar applications that require incubation, liquid handling, washing, and plate reading can all be accommodated with the same flexible device configuration. The system can easily be rolled over to a different bench for alternative workflows, with plates simply requiring lids for transport.
Meeting Your Laboratory’s Needs
For laboratories running ELISA assays, FlexPod represents a new opportunity. By carefully selecting devices that balance cost and capability, we've created a work cell that brings HighRes quality to the entry-level automation market. Whether you're looking for a fully integrated HighRes solution or a cost-effective setup that addresses specific throughput needs, FlexPod delivers the flexibility and performance that modern laboratories demand.
Interested in learning more about how FlexPod can fit into your laboratory?
Contact us to discuss your specific ELISA application needs and explore configuration options tailored to your requirements!